Arada_Logo_White_En

Community Hub

Buildbase Peckham

Arada London has recently acquired the Buildbase Peckham site on Blackpool Road, SE15 3SU.

We are now developing our ideas for a high-quality, residential led scheme on the site. Arada London is committed to engaging with the local community.

This is an opportunity to ask any questions and let us know what you think about the emerging proposals. We appreciate you taking the time to visit our community hub and sharing your views on our emerging plans.

Arada_Logo_Black_En
Arada_Logo_White_En

Welcome

Arada London has recently acquired the Buildbase Peckham site on Blackpool Road, SE15 3SU.

We are now developing our ideas for a high-quality, residential led scheme on the site. Arada London is committed to engaging with the local community.

This is an opportunity to ask any questions and let us know what you think about the emerging proposals. We appreciate you taking the time to visit our Community Hub and sharing your views on our emerging plans.

Arada_Logo_White_En

Proposals

Coming soon.

In the meantime, you can view the boards from our consultation event here:

The Site & Planning Context

The Site

The site is located in the London Borough of Southwark, and benefits from excellent transport connectivity within an 8-minute walk of Peckham Rye station.

Beyond the site’s industrial function as a builder’s yard, the current use offers little to no benefits to its immediate urban condition.

The corner of Copeland Road and Brayards Road presents three terraced houses with private gardens. The rest of the site’s frontages are entirely inactive presenting solid brick walls or fences over two metres tall.

The site is mostly covered in a continuous layer of hard-standing offering little to no biodiversity or permeability for rainwater attenuation. A few existing trees are located along the South Eastern and Eastern boundaries of the site and are planted into the footway.

Planning Context

Site Boundary (in red)

  • Buildbase Site ONLY
  • NSP75: Blackpool Road Business Park Allocation

NSP75: Blackpool Road Business Park Allocation

The site is located in the southern parcel of allocated site NSP75: Blackpool Road Business Park as highlighted in the Southwark Plan (2022).

Key considerations mentioned for future development of the allocation includes:

  1. The site is allocated for residential development.
  2. Re-provision of employment floor space on the site.
  3. Enhance permeability across the site.
  4. Commercial uses and taller buildings should be concentrated towards the north of the site.

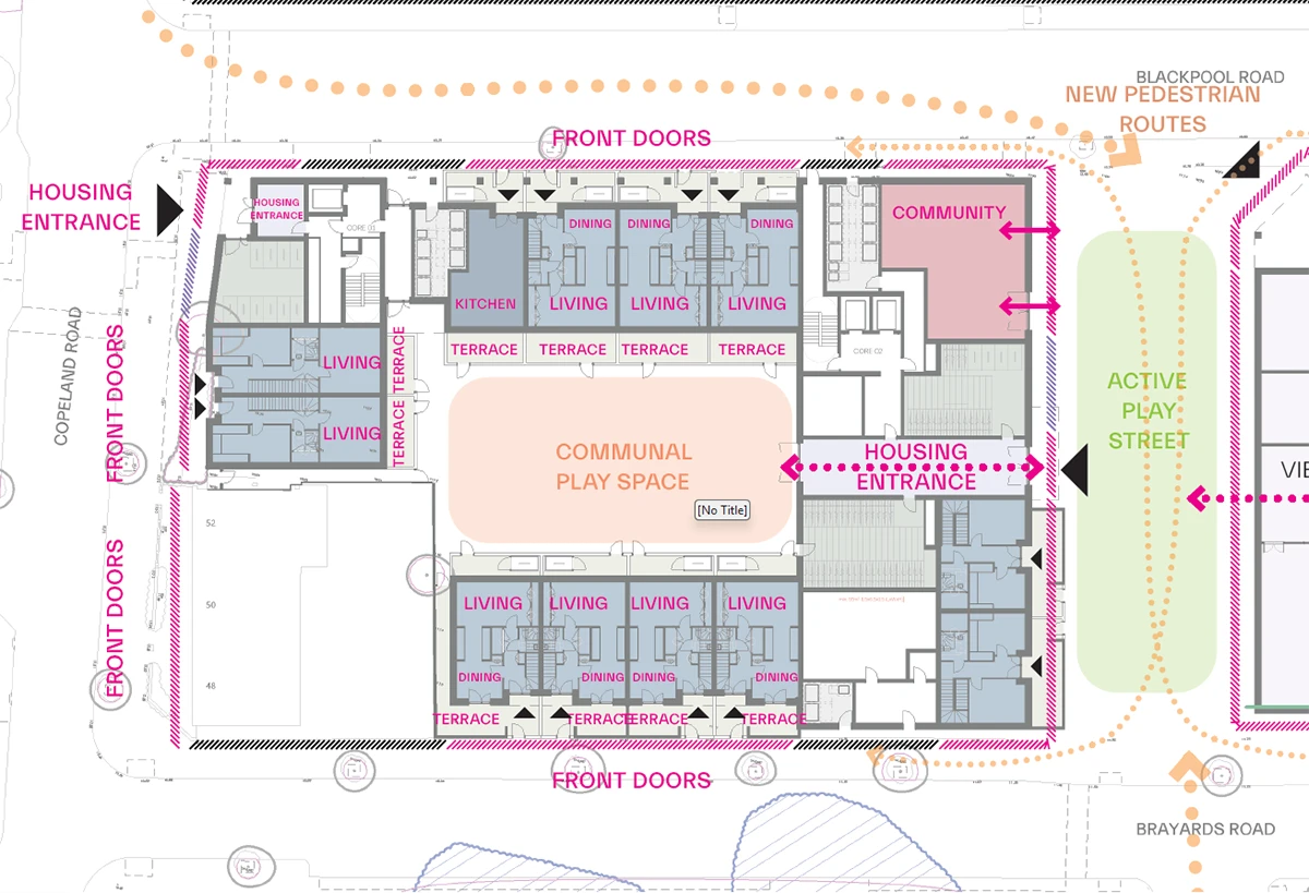
Site Layout & Uses

The layout of the site has been designed to bring together new homes and student accommodation, while keeping them clearly separated by a new Play Street running through the site.

Affordable homes are located on the western side of the site, next to the existing terraced houses and surrounding residential streets. This helps the new homes sit comfortably within the established neighbourhood along Copeland Road. This block reinstates the street frontage along Copeland Road, helping the new development fit naturally into the local area.

Student accommodation is located on the eastern side of the site, with ground floor spaces that will help create activity and movement along Consort Road and Brayards Road.

A new Play Street will be running North to South through the site, creating a pedestrian-friendly route linking Copeland Road with Brayards Road and Consort Road. Inspired by nearby streets such as Pilkington Road, it will prioritise walking, cycling and community activity.

1. Red line boundary and Site Dimensions:

The long site frontage will be broken into smaller sections to reflect the surrounding streets.

2. Proposed setback:

With a 2.4m footway, road areas, and tree protection zones included.

3. Uses and Play Street:

Uses positioned to connect with neighbouring buildings, with courtyards created by the site layout. Pilkington Road continues through the site as a pedestrian Play Street.

4. Access and Arrival:

Entrances located for visibility upon arrival from Peckham Rye and to enhance activity of the Play Street. Permeable ground floor uses further enhance its activity.

Residential Homes

The proposals will deliver much-needed affordable homes, including family-sized units, all at social rent—equivalent to over 40% if a mix of tenures were applied.

The scheme will also include a flexible space that could be used for community or local commercial uses.

We are also looking at providing larger family homes, alongside high-quality outdoor spaces for those living on the site.

Generous, Light Spaces

Quality Outdoor Amenity

Connection to Outdoors

Views from Key Spaces

Communal Congregation

Welcoming Statement Entrances

Silchester Housing by Haworth Tompkins Architects, Photographers Philip Vile, Fred Howarth, Keith Hunter

Family Homes and Courtyard

The proposed development will provide a mix of homes for different households, including a significant proportion of family homes, with maisonettes on the ground floor and apartments above.

Three- and four-bedroom homes are arranged around a central courtyard with a children’s play area, creating a safe and welcoming space for residents.

Every home will have private outdoor space, with larger family homes benefiting from terraces or balconies of at least 10m². Homes are designed to provide generous living spaces with good natural light and practical layouts suited to family life.

Student Housing

The proposals include c.550 purpose-built student accommodation designed to meet the needs of London’s growing student population.

Providing purpose-built accommodation helps reduce pressure on traditional rented housing in the area.

The building is arranged around a central courtyard and includes shared spaces for studying, relaxing and socialising. The accommodation will be professionally managed with on-site staff to support residents and ensure the building operates well.

Spaces for Sharing and Congregation

Views and Light in Communal Corridors

Considered Internal Amenity

Generous, High Quality Rooms

Communal Congregation

Indoor – Outdoor Connection

Frontage Key:

  • Active / Front Doors
  • Semi-Active / Bikes
  • Inactive / Backs

Student Amenity Spaces

  • Shared spaces are located on the ground floor and arranged around a central courtyard.
  • These areas provide places for studying, relaxing and spending time with friends. The courtyard offers outdoor seating and planting where residents can spend time outside.
  • Bedrooms are located on the upper floors to provide privacy and quieter living spaces.
  • The building will be professionally managed with on-site staff.

Massing

Massing Rationale

Lower Southern Blocks

South facing elements are lower in height to allow sunlight into the courtyards and surrounding areas, creating bright, welcoming spaces.

Height That Responds To Surroundings

Building heights are adjusted to fit the local context, creating an interesting and varied roofline.

Breaking Down The Building Frontages

The design includes features that divide the buildings into smaller, human-scale sections, giving variety and character

Welcoming Entrances

Key corners are chamfered to designate entrances and aid in wayfinding around the site whilst reducing frontage lengths.

Neighbouring and Site Impact

The proposed buildings have been designed to respect the neighbouring homes to the east and west, while also connecting with future plans for the bus depot to the north.

Along the southern edge, a series of smaller gabled buildings step up towards the centre of the site, with lower sections in between to create a gentle transition in height. The tallest buildings, up to 11 storeys, are located towards the north, where they respond to the site’s context.

Ground Floor

The ground floor layout separates family homes and student accommodation around two courtyards, creating spaces suited to different types of residents.

Family Courtyard

Indicative Precedent

Silchester Housing by Haworth Tompkins Architects, Photographers Philip Vile, Fred Howarth, Keith Hunter

Agar Grove Estate by Mae Architects

The entrance opens onto a family-friendly play space, creating a welcoming arrival. Public areas are connected to the residents’ courtyard, giving a sense of openness and community.

Private outdoor spaces bring life to the homes and provide natural buffers, while thoughtfully designed front doors give residents a sense of pride.

A lower two-storey section on the south side maximises sunlight throughout the homes and outdoor areas.

Private balconies offer pleasant views and encourage positive overlooking of shared spaces.

Student Courtyard

Indicative Precedent

Joachim Strasse by David
Chipperfield Architects – Simon
Menges-01 (Photographer)

Merkem Community Centre
by Rapp+Rapp, Kim Zwarts (Photographer)

Cloister, Photography Dr. Juliette Parsons, Ph.D.

The building is designed around a central courtyard with walkways around the edges.

The main entrance opens directly onto this central space.

Ground floor areas around the building will include spaces for students to meet, study, and spend time together.

A lower three-storey section on the south side allows more sunlight into the courtyard and surrounding areas.

Landscape and Public Realm

The proposals aim to create greener streets, safe places to play and welcoming spaces for residents and the wider community.

Play Street for All

  • Pilkington Road will be extended through the site to improve walking and cycling connections between surrounding streets.
  • Entrances to homes and student accommodation are located along this route, helping to create a well-used and welcoming street throughout the day.
  • A flexible multi-use space at the northern end will provide a focal point for community activity.
  • Trees, planting and informal play features will be integrated along the route to create a safe and shared space for residents and visitors of all ages.
  • The new street will be open and accessible, helping connect neighbouring streets and creating a safer route through the area.

South Gardens by Maccreanor Lavington, Photography by Tim Crocker

Kirkfell and Caudale Housing by Mae
Architects, Photography by Tim Crocker

Oru East Dulwich by OthersCloister, Photography Dr. Juliette Parsons, Ph.D.

Character Areas

A safe, vibrant playable street

A connected community

Local contextual references

Enjoyable nature and green spaces

Residential Courtyard

A playful courtyard space with trails and focal pieces for meaningful play opportunities, encouraging children’s safe exploration and providing doorstep play, fostering connection within a multi-generational community.

Play Street

A child-friendly urban space that is safe, enclosed, and welcoming, prioritising play and exploration.

Accessible to all abilities, with playful and interactive street furniture and seating for neighbours to gather. Proposed planters, trees, and rain gardens to soften the urban edge and improve air quality.

Student Courtyard

Flexible use spaces for collaboration and solitude, including outdoor learning & activity zones. A shaded area designed for year-round comfort with lush planting of shade-tolerant species. A natural and inclusive atmosphere encouraging reflection, socialisation, and engagement.

Student Roof Terrace

Outdoor social zones with multi-use areas, reflecting local spaces in a design which draws inspiration from existing social terraces and spaces in the area. Blurring indoor and outdoor boundaries through visual and physical links to the terrace.

Sustainability & Access

Energy Aspirations

The scheme will meet London Plan 2021 and Southwark Local Plan sustainability requirements, including the Policy SI 2 energy hierarchy, and will achieve BREEAM Excellent.

  • Sustainable transport will be prioritised, with a car-free scheme.
  • A circular, low carbon design will reduce embodied carbon through efficient material use, concrete with at least 20% GGBS, and the selection of products with Environmental Product Declarations.
  • A whole life cycle carbon assessment and Circular Economy Statement will be completed, supporting waste reduction, future adaptability, and flexible commercial spaces.
  • Water consumption will be limited to below 105 litres per person per day, supported by sustainable drainage and flood risk mitigation.
  • Environmental impacts will be minimised through air quality neutral design, construction pollution controls, and noise and vibration management, alongside ecological appraisal and biodiversity enhancements.

BREEAM Targets

The proposed development is targeting a BREEAM UK New Construction 2018 ‘Excellent’ rating for the PBSA areas.

The strategy is embedded from the outset, focusing on a fabric first energy approach, reduced operational carbon emissions, student health and wellbeing, efficient water use, responsible material selection and sustainable transport.

Waste and Servicing

Waste storage will be provided at ground floor level and collected from surrounding streets on collection day. The servicing strategy has been designed to minimise disruption to residents and neighbouring streets.

Key measures include:

  • Waste collections from Blackpool Road and Brayards Road
  • Delivery and servicing taking place from surrounding streets rather than within the site
  • Secure cycle parking, including spaces for cargo bikes to support sustainable deliveries

Blue Badge parking spaces will be provided for the affordable housing homes.

Public Benefits

New Homes for local people
  • Affordable homes provided at social rent
  • Family-sized homes arranged around shared courtyards
  • Purpose-built student accommodation helping reduce pressure on private rented housing

Greener Streets and Outdoor Spaces

  • Landscaped courtyards for residents
  • New planting and trees across the site
  • Spaces for rest, play and outdoor activity

Better Connections & Accessibility

  • Pilkington Road extended to improve walking and cycling routes
  • A new Play Street providing safe space for movement and play
  • Clear and accessible routes linking surrounding streets

Streets & Local Character

  • Flexible ground floor spaces for community use or small businesses
  • Active frontages helping create welcoming streets
  • Opportunities for local services and neighbourhood activity

Sustainability

  • Designed to meet modern environmental standards
  • Energy-efficient buildings that reduce carbon emissions
  • Planting and landscaping to support urban biodiversity

Social Value and Community Benefits

Key priorities identified include:

  • A need for affordable, flexible and permanent spaces in the local area in particular for mentoring, youth support, and family services.

  • Training and employment opportunities: Some groups were interested in site visits, apprenticeships, and work experience opportunities for local people.

  • Accessible and inclusive facilities: Spaces that can be used by multiple groups, including charities and community networks, will help foster collaboration and stronger neighbourhood connections.

The Site

Planning Context

Chelsea Cloisters is a 10-storey mixed-use building with a basement, located in the Brompton and Hans Town Ward of the Royal Borough of Kensington and Chelsea.

At ground level, the building features residential units along the Ixworth Place, Makins Street, and Lucan Place frontages, while the Sloane Avenue frontage comprises a mix of commercial spaces and residential units above. The residential accommodation includes both long- and short-term lettings.

Additionally, two commercial units are situated centrally within the building, and the basement provides parking for both residents and the public.

Community and Amenity Enhancements:

  • The proposals integrate key elements to align with Part L 2021 requirements, ensuring energy efficiency and sustainability.
  • The three-storey extension will incorporate high-performance insulation materials for walls, roofs, and floors, significantly reducing thermal bridging and heat loss.
  • Renewable energy technologies, such as solar PV panels, are being considered to further minimise the building’s carbon footprint and meet rigorous energy performance standards.
  • The site maximises its highly accessible location, with a Public Transport Accessibility Level (PTAL) score of 6a, by encouraging visitors to use public and active transport options.
  • The scheme includes policy-compliant levels of cycle parking and designated blue badge parking spaces.

Community and Amenity Enhancements:

  • Significant visual improvements and enhanced outlook for existing residents through high-quality landscaping and urban greening in the courtyard.
  • Opportunity for the conference facility to be used for community purposes when not in use, providing social value.
  • Creation of a new café within the courtyard.
  • New modern gym.
  • Significant urban greening that will boost local biodiversity.

Label

Label

Label

Label

Label

Label

Label

Chelsea Cloisters is a 10-storey mixed-use building with a basement, located in the Brompton and Hans Town Ward of the Royal Borough of Kensington and Chelsea.

At ground level, the building features residential units along the Ixworth Place, Makins Street, and Lucan Place frontages, while the Sloane Avenue frontage comprises a mix of commercial spaces and residential units above. The residential accommodation includes both long- and short-term lettings.

Arada_Logo_White_En

The Team

Arada_Logo_Black_En

Arada London (formerly Regal) is one of the leading property developers in London, creating beautiful and inspiring places, from homes to workspaces, student accommodation to later living communities – and all the spaces in between. Through our projects and partnerships, we both enhance community life and transform urban landscapes.

Unlike many other developers, we take a long-term, close partnership approach in the delivery of all our projects, committing to the entire life-cycle of a development, from acquiring the land through to the construction, delivery and in-house management of sites post completion.

As such, thorough consultation is key from the outset, whether that be working with community groups, local residents, adjacent landowners or future occupiers of their sites. We are committed to creating sustainable places that respond to local needs.

Devonshire Place, Southwark

Fulton & Fifth, Wembley

Morris+Company are a London based practice, with a team of 70 specialists who create and deliver housing, schools, healthcare, workplaces, neighbourhood masterplans, and more.

Our teams rich, cross-sector experience informs every stage of the project journey – connecting environmental sustainability with economic, social and cultural resilience.

Canada Water K1, Southwark

King’s Place, Southwark

Wider Team

Planning & Townscape Consultants

Social Value

Landscape Architects

Canada Water K1, Southwark

Sustainable, Energy & Carbon Consultants

Acoustic Consultants

Air Quality Consultants

Arboricultural Consultants

Fire Engineer

Transport and Waste Consultants

Arada_Logo_White_En

Timeline

Summer 2026

Target Application Submission

Summer 2026
Q2-2027

Target Start on Site

Q2-2027
Mid-2030

Target Completion Date

Mid-2030
Arada_Logo_White_En